How much can I borrow?
Key Features
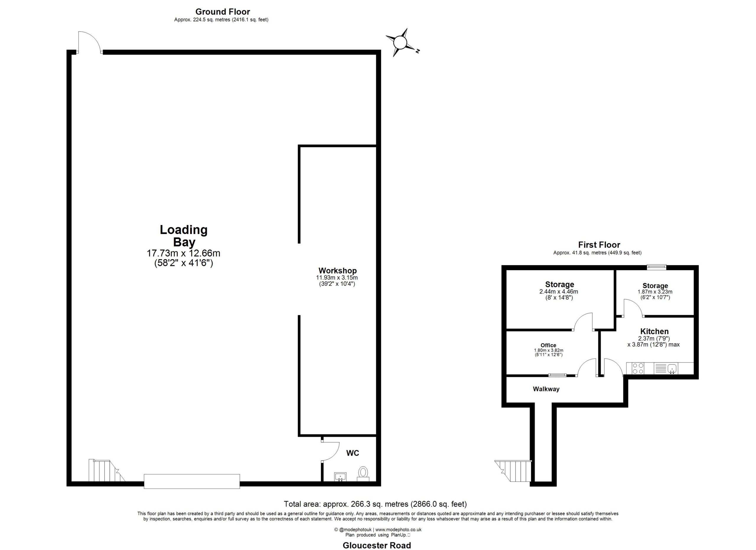
- Spacious Commercial Unit
- Ideal for Light Industrial Occupiers – Use Class E
- Approximately 2,866 sq. ft.
- Secure gated covered yard
- First floor mezzanine with private office, kitchen and additional secure storage
Description
The property benefits from a secure gated entrance with parking for up to 3 vehicles and is well positioned in Croydon, providing around 2,866 sq. ft. of adaptable space suitable for a variety of light industrial occupiers. The ground floor offers a generous loading bay with easy access, complemented by a workshop and ancillary areas. The first floor provides additional flexibility with private office, storage rooms and kitchen facilities, creating a layout that can be tailored to different requirements.
Location
The property is situated in a well-connected part of Croydon, close to the town centre with a wide range of shops, restaurants and local amenities. The property benefits from excellent transport links with East Croydon station less than a mile away, offering direct services to London Victoria and London Bridge in under 20 minutes, as well as fast links to Gatwick Airport and Brighton. The area is well served by local bus routes and major road connections, with the A23 and A232 offering direct access to the wider South London network and the M25. Croydon itself has become a thriving commercial hub, home to a wide mix of occupiers from independent businesses to national brands, with a strong local workforce and amenities on the doorstep.

