How much can I borrow?
Key Features
- Rare opportunity to acquire a quality split level commercial unit arranged over ground and mezzanine levels
- Suitable for multiple uses, including E, F1 and F2
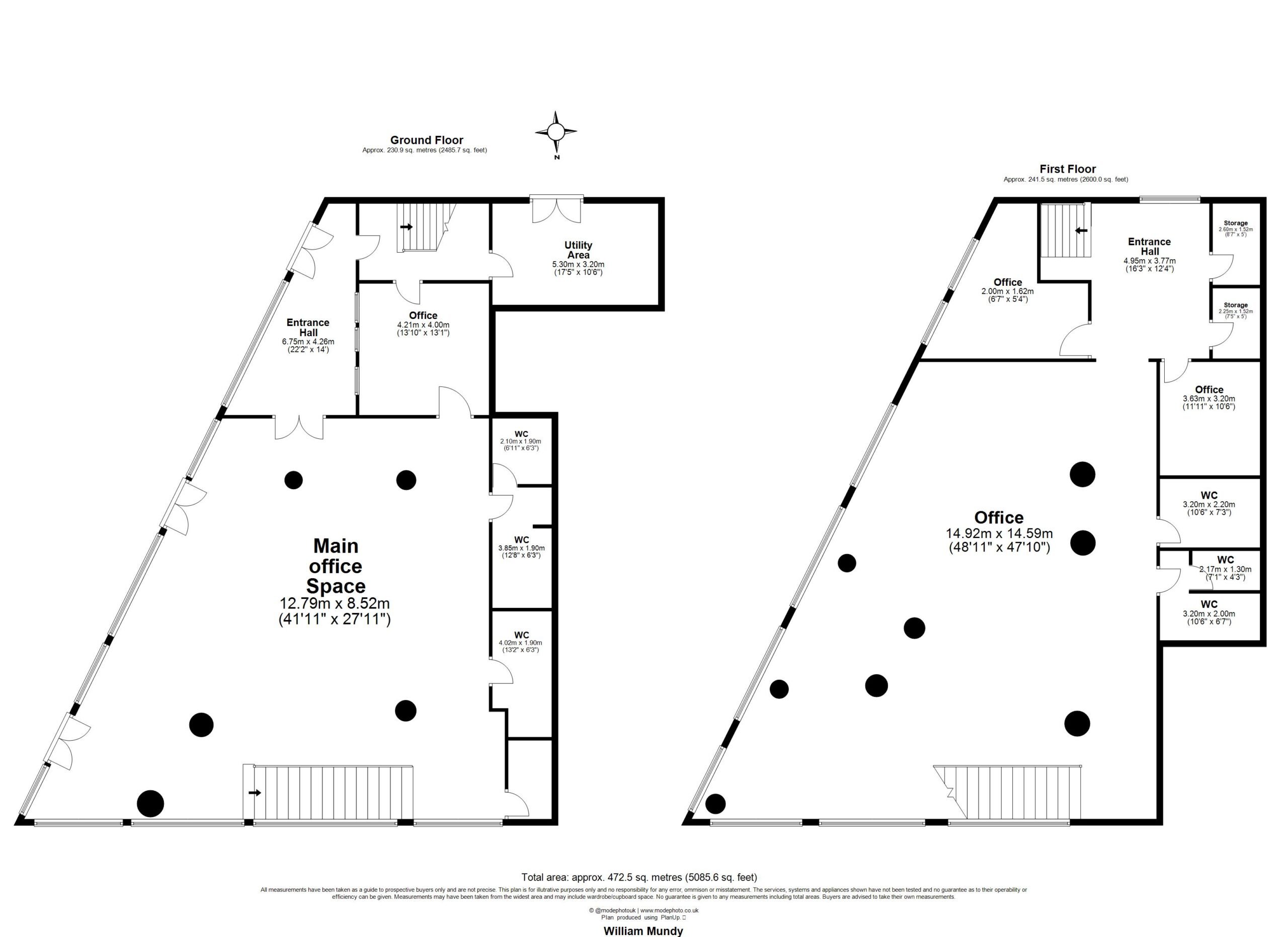
- Approximately 5,085 sq. ft.
- The property is presented in shell & core condition within a modern development
- Two dedicated parking spaces
- Located in a well established residential area, within proximity to Dartford Railway Station
Description
This impressive split-level commercial unit offers exceptional flexibility across two floors, providing a total area of approximately 5,085 sq ft.
The ground floor benefits from a spacious open-plan layout with extensive glazing, creating a light-filled main workspace ideal for a variety of fit-outs. Supporting areas include a private office, utility room, and multiple WC facilities, offering practicality for day-to-day operations.
Two staircases lead to the first floor, which continues the open-plan design with additional office space, storage rooms, and further WC facilities. Providing an adaptable layout suitable for collaborative working or private offices.
Positioned within a contemporary mixed-use development, the property enjoys a prominent corner aspect with landscaped surroundings and a modern façade. Its layout and natural light make it well-suited for uses such as medical, childcare, or professional offices, subject to necessary consents.
Location
The property occupies a prominent position on the south side of William Mundy Way, enjoying open views over the River Darent within a modern mixed-use development.
Dartford Railway Station (Southeastern and Thameslink services) is located just a five-minute walk away, providing direct connections to London Bridge in approximately 37 minutes.
The surrounding area has undergone significant regeneration in recent years, with the creation of more than 700 new residential apartments since 2017, contributing to a thriving local community.
The location also offers convenient access to Abbey Wood’s Crossrail (Elizabeth Line), reachable in just eight minutes by train from Dartford, enhancing connectivity across London and beyond

