How much can I borrow?
Key features
- A Grade II listed Former Hall Building
- Sui Generis Use – Suitable for various uses ( Events, Nursery, Religious, Education ) – Subject to necessary consents
- The property is held on a 999 lease commencing on 1st January 2025
- Approximately 3,992 sq. ft.
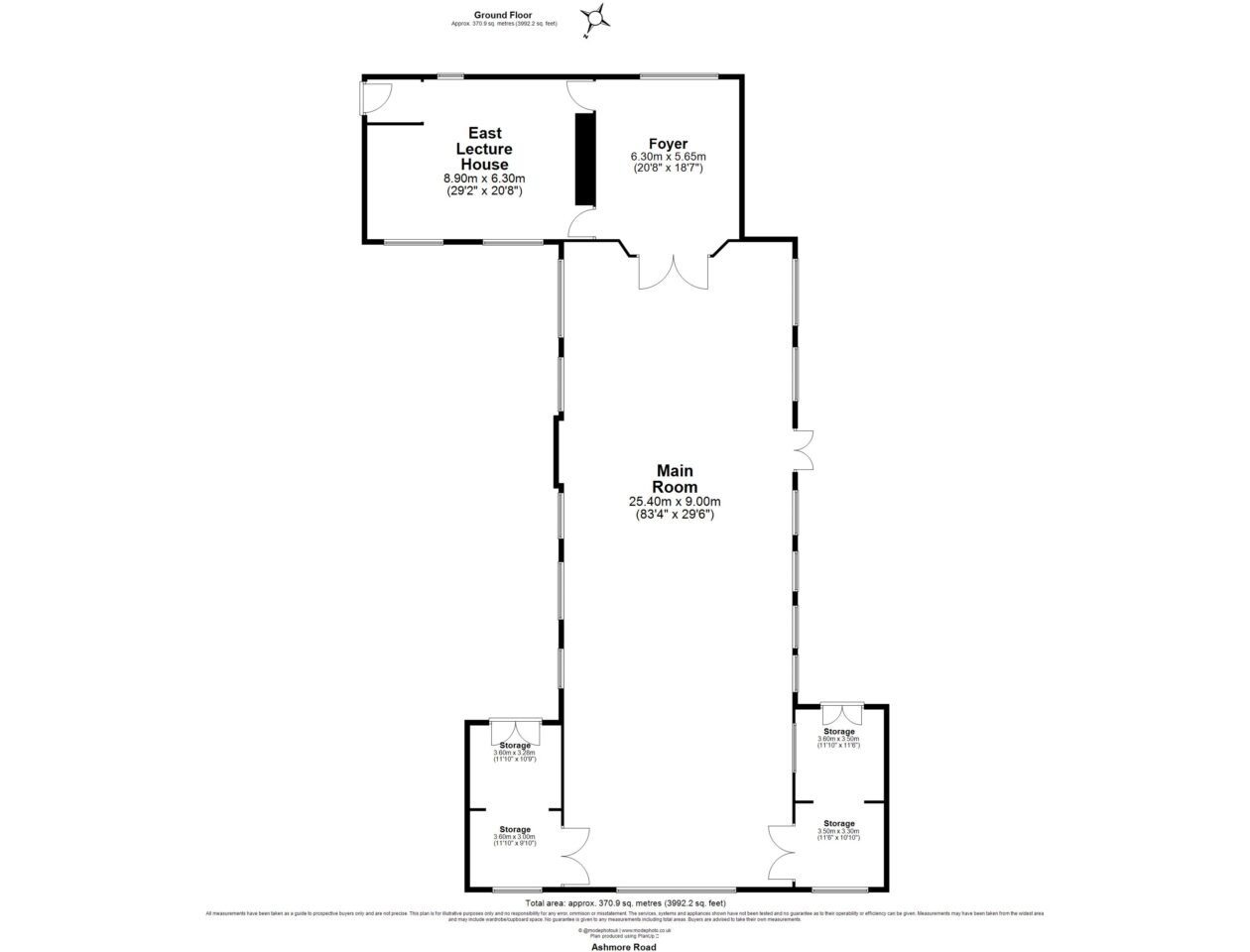
- East Lecture House foyer at the front, leading through to a large main hall with a further foyer area and multiple storage rooms
- The Great Hall – Potential for change of use/redevelopment
Description
The property benefits from Sui Generis use, allowing a wide range of potential purposes (including Events, Nursery, Religious or Educational use, subject to consents). The Great Hall, is a Grade II listed former hall arranged entirely over the ground floor and previously approved for community use. It provides a grand entrance and foyer leading into the impressive Great Hall, with several ancillary storage rooms positioned off the main space, offering strong potential for refurbishment and flexible future occupation. East Lecture House, sits to the front of the building and is accessed directly from the foyer; this self-contained room of approximately 462 sq ft previously secured consent for conversion into a one-bedroom apartment and forms part of a wider approved scheme.
Location
The property is situated on the north side of Ashmore Road, just west of its junction with Red Lion Lane. Local shops and amenities along Shooters Hill Road are close by, with Woolwich town centre located to the north. Woolwich station provides both rail and Elizabeth Line services, offering fast connections across London.
The A205, A2 and A20 are all easily accessible, giving strong road links to the wider area. Woolwich Common, Charlton Park and Blackheath are nearby, and Queen Elizabeth Hospital is approximately 0.7 miles to the northwest


