How much can I borrow?
Key Features
- Existing dance school on a 0.22 acre site
- May be suitable for a wide range of uses including Educational, SEND and Nursery, subject to necessary consents
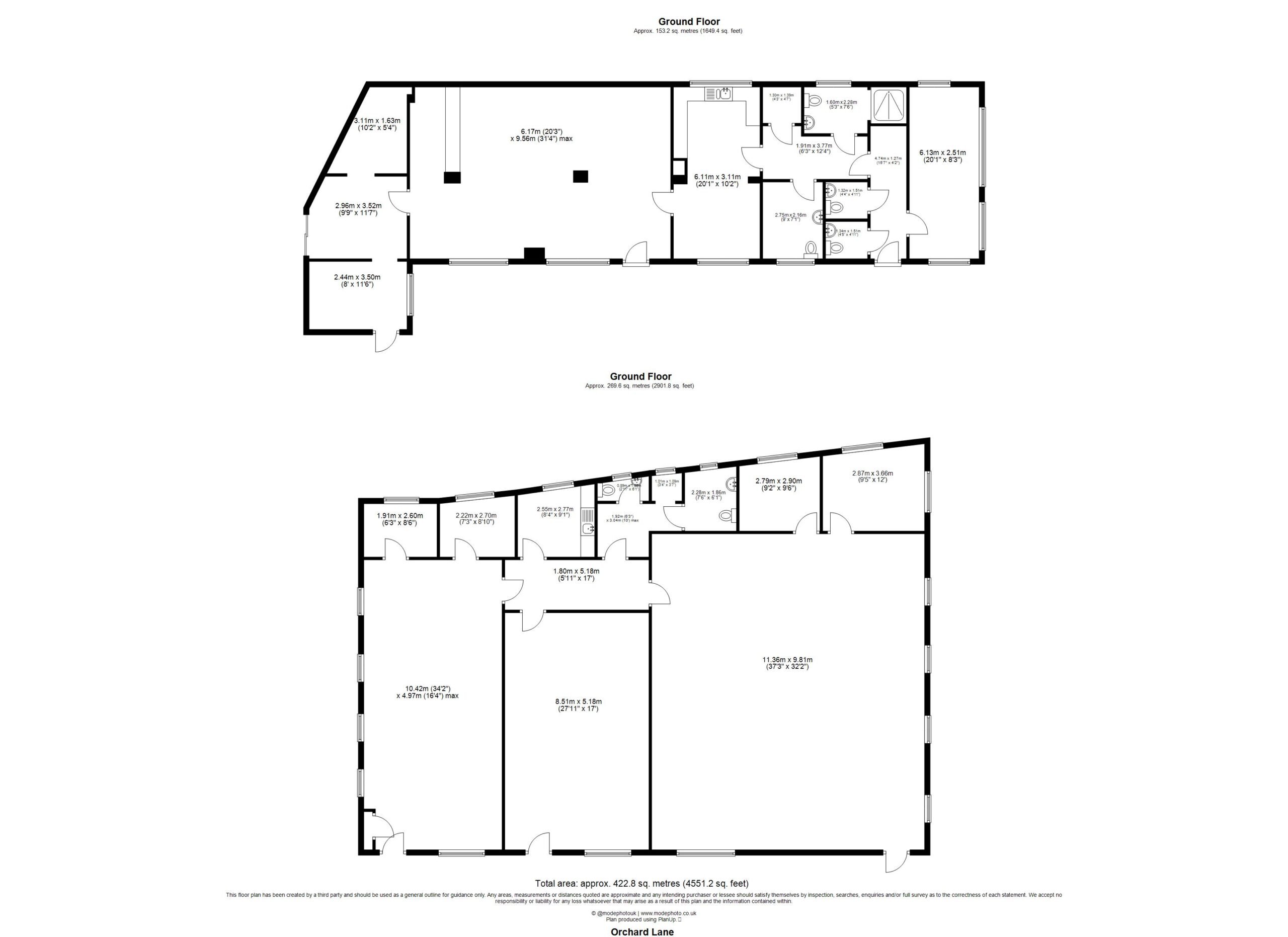
- Approximately 4,551 sq. ft. GIA
- Large outside space, suitable for a mixture of parking and or play area
- Buildings may be available via separate negotiations
- Prominent town centre location
Description
The property comprises two separate single-storey buildings, each offering well-presented and versatile accommodation. One building provides approximately 1,649 sq ft, featuring a former dance school layout with a generous open-plan studio and a series of supporting rooms suited to teaching, administration or specialist use.
The second building extends to approximately 2,901 sq ft and offers a larger configuration with multiple rooms, making it highly adaptable for a wide range of operational needs.
Both buildings are arranged entirely over the ground floor and can be occupied together, offering excellent scale, flexibility and configuration. They are particularly appealing to Educational, SEND and Nursery providers, subject to the necessary consents, offering practical accommodation with the potential to be tailored around specific operational models.
Location
The property is located within close proximity to Huntingdon town centre, benefiting from excellent access to local transport links and amenities. It is close to Huntingdon Railway Station, which provides regular direct services to London King’s Cross, Peterborough and Cambridge, offering strong connectivity for staff, visitors and service users.
Road access is also highly convenient, with the nearby A14 providing quick links to Cambridge, the A1(M) and the wider motorway network. Frequent local bus routes serve the area, further enhancing accessibility by public transport.
The town centre offers a wide range of amenities, including supermarkets, cafés, retail outlets and public services, while nearby residential areas, green spaces and community facilities contribute to a well-connected and practical location for a variety of occupiers.


