How much can I borrow?
Key Features
- Worship facility with separate two-storey residential building
- Offering F1 (D1) use
- Approximately 13,666 sq. ft. on a one acre site
- Two separate conference halls, each seating 150+ people
- 15 en-suite residential units located at the front of the site, with laundry facilities and outdoor space
- Extensive parking with potential to subdivide into two freehold titles.
Commercial Description
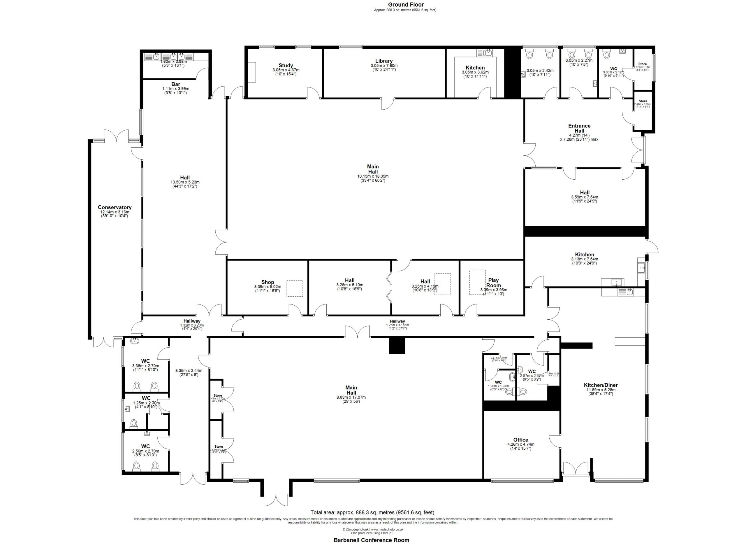
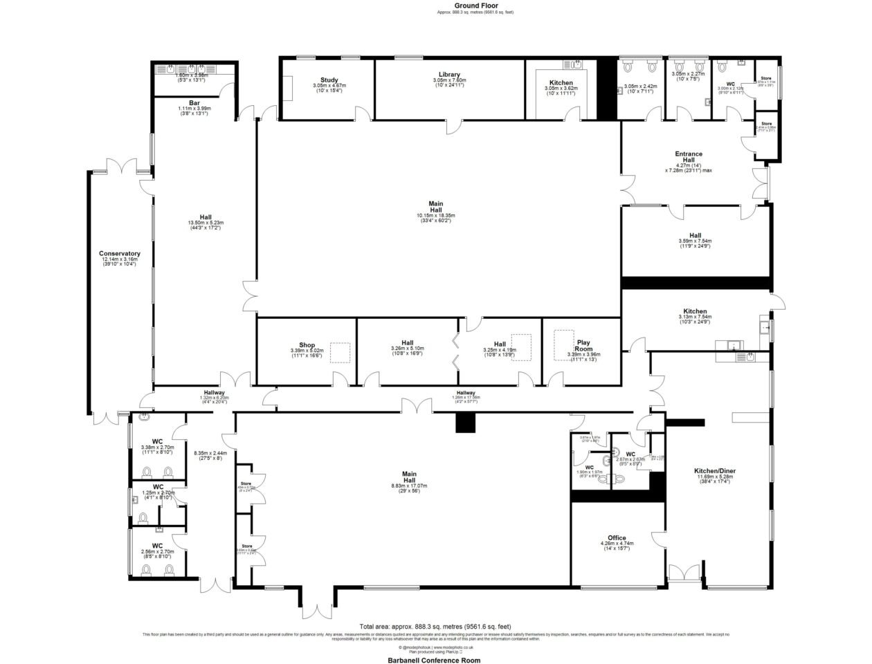
At the heart of the site lies a walled garden, directly north of which is a single-storey, brick-built F1 Use building providing a place of worship. There are two seperate conference halls each capable of seating 150+ people. There are further ancillary facilities including a kitchen, offices, meeting rooms, and WC’s. The building is maintained to a good standard and is approximately 9,561 sq. ft.
Residential Description
To the west stands a modern, two-storey residential block, constructed around 25 years ago and converted from office use in 2019. It offers 15 ensuite rooms (9 singles, 6 doubles), alongside a communal lounge with kitchenette and a laundry room. The building is well-presented and in good condition and is approximately 4,105 sq.ft. There is ample external areas demised for parking.
Location
The property is prominently situated on the east side of Stone Road (A34), a key arterial route linking Birmingham and Manchester. Positioned just before the junction with Eccleshall Road (A5103), it lies on the northern edge of Stafford Town Centre. The surrounding area comprises a mix of residential and commercial uses. The site extends to approximately 1 acre and benefits from dual access via Stone Road and Co-Operative Street, wrapping around an adjoining dental surgery at 64 Co-Operative Street.

