Key Features
- Former nightclub situated in a highly prominent town centre location
- Sui Generis Use – Ideal for a variety of uses including Events, Soft Play, Climbing and many others – subject to necessary consents
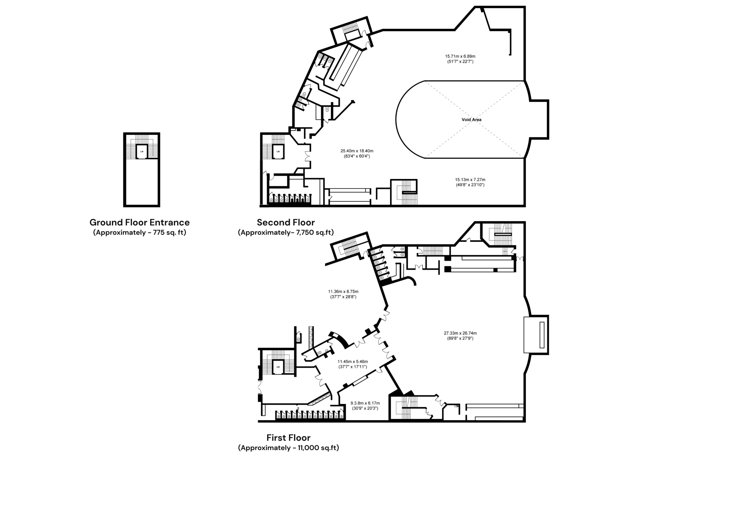
- Approximately 19,500 sq. ft
- Providing flexible first and second floor accommodation
- The premises features expansive open plan areas with impressive floor to ceiling heights throughout
- Public parking available nearby
Description
The property comprises a prominently positioned commercial building arranged over ground, first and second floors, providing flexible accommodation suitable for a wide range of occupiers, subject to any necessary consents. The main entrance is at ground floor level, with the accommodation benefitting from open-plan layouts and a configuration that can be adapted to suit individual operational requirements. Occupying a highly visible position within Watford town centre, the property benefits from strong accessibility, with a number of public car parks located nearby, providing convenient parking for staff and visitors The property is available to let on flexible lease terms, tailored to occupier requirements. The purchase of the site may also be considered, presenting an attractive opportunity for owner-occupiers or investors seeking long-term value.
The property has been cleared of the previous tenant’s fixtures and fittings, providing a blank and flexible space ready for an incoming occupier’s fit-out. The building also benefits from a goods lift, multiple WC facilities and disabled access.
Location
The Parade occupies a prominent position within Watford town centre, one of Hertfordshire’s principal commercial and retail destinations. The property is situated along The Parade, a well-established mixed-use area benefiting from strong footfall and a wide range of nearby amenities, including retail, food & beverage, leisure and professional services. Watford High Street and the Atria Watford shopping centre are both within close proximity, further enhancing the commercial appeal of the location. Transport connections are excellent. Watford Junction Station is located nearby and provides fast and frequent rail services to London Euston, with journey times of approximately 20 minutes, together with strong regional connections. The area is also well served by local bus routes, while road access is convenient via the A41, A405 and M25, offering easy connectivity across Hertfordshire and Greater London. The combination of a central town centre location, strong transport links and an established commercial environment makes the property highly attractive to a wide range of commercial occupiers.


